150 KVA پیڈ ماونٹڈ ٹرانسفارمر -34.5/0.208 KV|USA 2024
گنجائش: 150kva
وولٹیج: 34.5/0.208KV
خصوصیت: بیونٹ فیوز کے ساتھ

اسمارٹ پاور ڈسٹری بیوشن میں ایک بینچ مارک - تین - فیز پیڈ - ماونٹڈ ٹرانسفارمر ایک پریشانی پیدا کرتا ہے - مفت توانائی کا تجربہ!
01 جنرل
1.1 پروجیکٹ کا پس منظر
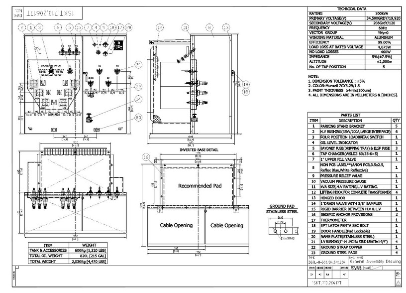
یہ 150 کے وی اے تھری فیز پیڈ ماونٹڈ ٹرانسفارمر 2024 میں جنوبی امریکہ کو پہنچایا گیا تھا۔ ٹرانسفارمر کی درجہ بندی کی طاقت 150 کے وی اے ہے ، جس میں پرائمری وولٹیج 34.5 گرڈی/19.92 کے وی کو ثانوی وولٹیج 0.208 گرڈی/0.12 کے وی سے ہے۔ کنکشن گروپ YNYN0 ہے ، کولنگ اونن ہے۔ تھری فیز پیڈ ماونٹڈ ٹرانسفارمر ایک کمپیکٹ پاور ڈسٹری بیوشن ڈیوائس ہے جو اعلی - وولٹیج سوئچ گیئر ، ڈسٹری بیوشن ٹرانسفارمر ، کم - وولٹیج سوئچ گیئر ، الیکٹرک انرجی میٹرنگ کا سامان اور رد عمل کے معاوضے کے آلے کو ایک یا کئی خانوں میں ایک یا کئی خانوں میں جوڑتا ہے۔ یعنی ، ہائی وولٹیج پاور ، ٹرانسفارمر مرحلہ - نیچے ، کم وولٹیج کی تقسیم اور دیگر افعال کو ایک ساتھ مل کر ایک ساتھ ملایا جاتا ہے ، ایک نمی -}}}}}}}}}}}} prob ، مکمل طور پر ، دھول {{}}}}}}}}}}}}}}}-}}} منسلک آپریشن ، فیکٹریوں ، بارودی سرنگوں ، تیل کے کھیتوں ، بندرگاہوں ، ہوائی اڈوں ، شہری عوامی عمارتوں ، رہائشی علاقوں ، شاہراہوں ، زیر زمین سہولیات اور دیگر مقامات پر لاگو ہوتا ہے۔
1.2 تکنیکی تفصیلات
750 KVA پیڈ ماونٹڈ ٹرانسفارمر تفصیلات اور ڈیٹا شیٹ
|
فراہم کیا
جنوبی امریکہ
|
|
سال
2024
|
|
ماڈل
150KVA-34.5gry/19.92-0.208GRDY/0.12KV
|
|
قسم
پیڈ ماونٹڈ ٹرانسفارمر
|
|
معیار
آئی ای ای ای سی 57.12.00
|
|
درجہ بندی کی طاقت
150kva
|
|
تعدد
60Hz
|
|
مرحلہ
3
|
|
کولنگ کی قسم
اونن
|
|
پرائمری وولٹیج
34.5 گرڈی/19.92 کے وی
|
|
ثانوی وولٹیج
0.208 گرڈی/0.12 کے وی
|
|
سمیٹنے والا مواد
ایلومینیم
|
|
کونیی نقل مکانی
ynyn0
|
|
رکاوٹ
5.75%(±7.5%)
|
|
چینجر کو تھپتھپائیں
nltc
|
|
ٹیپنگ رینج
±2*2.5%
|
|
بوجھ کا کوئی نقصان نہیں
0.46kW
|
|
بوجھ کے نقصان پر
4.675KW
|
|
لوازمات
معیاری ترتیب
|
1.3 ڈرائنگ
300 کے وی اے پیڈ ماونٹڈ ٹرانسفارمر ڈایاگرام ڈرائنگ اور سائز۔
![]() |
![]() |
02 مینوفیکچرنگ
2.1 کور
کور اعلی معیار اور اعلی پارگمیتا سلیکن اسٹیل شیٹ ، ملٹی - مرحلہ عمل ، باس شور میں کمی ، کم نمبر - لوڈ نقصان کو اپناتا ہے۔ آئرن کور کا ڈیزائن "E - i" ٹائپ یا "رنگ" کا ڈھانچہ اپناتا ہے۔ E - I ٹائپ E - کی شکل میں اور I - شکل کی سلیکن اسٹیل کی چادریں ایک ساتھ مل کر ایک بند - lo لوپ مقناطیسی سرکٹ کی تشکیل کے ل flu فلوکس رساو اور ایڈی موجودہ نقصان کو مؤثر طریقے سے کم کرسکتی ہے۔ کنڈولر کور اوریولر ڈیزائن کے ذریعہ توانائی کے نقصان کو مزید کم کرتا ہے اور بہتر بہاؤ کا راستہ فراہم کرتا ہے۔ سلیکن اسٹیل کی ہر شیٹ موصل ہوتی ہے ، عام طور پر موصل پینٹ کے ساتھ یا موصلیت والے کاغذ کے ساتھ لیپت ہوتا ہے ، جو ایڈی دھاروں کی نسل کو کم کرتا ہے۔ آئرن کور کے ٹکڑے ٹکڑے کرنے کا عمل آئرن کور کے ہسٹریسیس نقصان کو کم سے کم کرتے ہوئے آئرن کور کی پارگمیتا کو یقینی بنانے کے لئے چادروں کو تہوں میں چھوڑ دیتا ہے۔

2.2 سمیٹ

سمیٹنے والے ٹرانسفارمر کا سب سے بنیادی جزو ہے ، جو سرکٹ کا حصہ ہے جو مقناطیسی فیلڈ کو قائم کرتا ہے اور بجلی کی توانائی کو منتقل کرتا ہے۔ یہ ایلومینیم تار کے ذریعہ زخم ہے جو موصل پینٹ (یعنی انامےڈ تار) میں لپیٹا ہوا ہے اور ٹرانسفارمر کے آئرن کور کالم پر رکھا گیا ہے۔ پرت سمیٹنے سے متعدد موصلیت کی تہوں کا استعمال ہوتا ہے ، ہر پرت موصلیت کے مواد سے الگ ہوتی ہے ، جو موصلیت کی طاقت کو بہتر بنانے ، بجلی کے خرابی کے خطرے کو کم کرنے اور ٹرانسفارمر کی وولٹیج مزاحمت اور حفاظت کو بہتر بنانے میں مدد کرتی ہے۔ پرت سمیٹنے کا ڈیزائن یکساں تقسیم اور گرمی کی کھپت کی سہولت فراہم کرتا ہے۔ سمیٹنے کی ہر پرت کے مابین جگہ اور موصلیت گرمی کو موثر انداز میں چلانے اور اسے ختم کرنے میں مدد کرتی ہے ، جس سے ٹرانسفارمر کی آپریشنل وشوسنییتا کو زیادہ گرمی اور بہتر بنانے کے خطرے کو کم کیا جاسکتا ہے۔ چونکہ پرت سمیٹنے کا ساختی ڈیزائن برقی مقناطیسی مداخلت کو کم کرسکتا ہے ، لہذا پرت سمیٹنے سے ٹرانسفارمر کی برقی مقناطیسی مطابقت کو بہتر بنانے ، آس پاس کے سامان پر اثر کو کم کرنے اور نظام کے استحکام کو بہتر بنانے میں مدد ملتی ہے۔ پرت سمیٹنے کی پرتوں والی ساخت بہتر میکانکی طاقت اور استحکام فراہم کرسکتی ہے ، خاص طور پر ہائی وولٹیج اور اعلی طاقت کے ایپلی کیشنز میں ، میکانکی تناؤ اور کمپن کو مؤثر طریقے سے مزاحمت کرسکتی ہے ، اور ٹرانسفارمر کی خدمت کی زندگی کو بڑھا سکتی ہے۔
2.3 ٹینک
ویلڈنگ کے عمل کو لازمی طور پر ویلڈنگ کی پوزیشن ، ویلڈنگ کرنٹ ، ویلڈنگ کی رفتار ، وغیرہ سمیت ویلڈنگ سے پہلے ، ویلڈنگ کے علاقے کو صاف کریں ، اس بات کا یقین کرنے کے لئے کہ تیل یا زنگ نہیں ہے۔ ہموار سطح کو یقینی بنانے کے ل the ٹینک کی سطح کا زنگ کو ہٹانے اور ریت کے دھماکے سے علاج کیا جانا چاہئے۔ اس کے بعد یہ یقینی بنانے کے لئے لیپت کیا جاتا ہے کہ ٹینک سنکنرن کے خلاف مزاحم ہے۔ تمام مہروں کو آخری حد تک مہر لگا دی گئی ہے۔ باکس کے اندر اور باہر دھات کے حصے بالوں کو دور کرنے کے لئے گول کیے جاتے ہیں ، اور ویلڈ سیون اور مہر کو تین بار (فلوروسینس ، مثبت دباؤ ، منفی دباؤ کے رساو ٹیسٹ) کے لئے تجربہ کیا جاتا ہے۔ یہ پینٹ گھریلو آلات کی زنگ کی روک تھام کی ضروریات کے مطابق بنایا گیا ہے۔

2.4 آخری اسمبلی


03 ٹیسٹنگ
1. ڈی سی مزاحمتی ٹیسٹ۔
2. موصلیت کے خلاف مزاحمت کا امتحان۔
3. وولٹیج تناسب اور ویکٹر گروپ کی پیمائش۔
4. الگ الگ ماخذ AC وولٹیج ٹیسٹ کا مقابلہ کریں۔
5. حوصلہ افزائی AC وولٹیج ٹیسٹ کا مقابلہ کریں۔
6. پیمائش نمبر {{1} load بوجھ کا نقصان اور کوئی بوجھ موجودہ نہیں۔
7. پیمائش کا بوجھ اور رکاوٹ۔
8. مزاحمت کا نقصان اور کارکردگی۔
9. مہر ٹیسٹ.


04 سائٹ اور خلاصہ
ہمارے تین - فیز پیڈ - ماونٹڈ ٹرانسفارمر میں آپ کی دلچسپی کا شکریہ! اعلی کارکردگی کے ساتھ وشوسنییتا کا امتزاج کرتے ہوئے ، ہماری مصنوعات کو موثر بجلی کی فراہمی ، استحکام اور حفاظت کے ل your آپ کی ضروریات کو پورا کرنے کے لئے غیر معمولی ڈیزائن تیار کیا گیا ہے۔ چاہے تجارتی علاقوں ، صنعتی ایپلی کیشنز ، یا قابل تجدید توانائی کے حل کے ل we ، ہم آپ کو پیشہ ور اور اپنی مرضی کے مطابق خدمات فراہم کرنے کے لئے وقف ہیں۔ مزید معلومات یا موزوں حل کے ل please ، براہ کرم ہم سے رابطہ کریں۔ ہم بجلی کے حل میں ایک روشن مستقبل بنانے کے ل you آپ کے ساتھ کام کرنے کے منتظر ہیں!

ڈاؤن لوڈ، اتارنا ٹیگ: 150 کے وی اے پیڈ ماونٹڈ ٹرانسفارمر ، مینوفیکچرر ، سپلائر ، قیمت ، لاگت
You Might Also Like
75 KVA 3 فیز ڈسٹری بیوشن ٹرانسفارمر -13.8/0.208 KV|ک...
1500 KVA پیڈ ماونٹڈ ٹرانسفارمر -34.5/0.48 KV|USA 2024
3000 KVA پیڈ ٹرانسفارمر -23/0.38 KV|سلواڈور 2025
3000 KVA ٹرانسفارمر -25/0.6 کے وی|کینیڈا 2025
2000 کے وی اے پیڈ ماونٹڈ ڈسٹری بیوشن ٹرانسفارمر -4.1...
1500 KVA ماؤنٹ ٹرانسفارمر -22.86/0.208 KV|USA 2024
انکوائری بھیجنے








