2500 KVA تھری فیز پیڈ - ماونٹڈ ٹرانسفارمر -13.8/0.63*2 کے وی|USA 2025
صلاحیت: 2500KVA
وولٹیج: 13800grdy/7970-630*2 v
خصوصیت: FR3 تیل کے ساتھ

2500 KVA تین - فیز پیڈ - ماونٹڈ ٹرانسفارمر - امریکی توانائی کی منتقلی کو محفوظ ، موثر اور قابل تجدید- تیار کارکردگی کے ساتھ طاقت دینا
01 جنرل
1.1 پروجیکٹ کا پس منظر
ریاستہائے متحدہ میں صاف اور پائیدار توانائی کی بڑھتی ہوئی طلب کی تائید کے ل our ، ہماری ٹیم نے اپریل 2025 میں 2500 KVA تین - فیز پیڈ - ماونٹڈ ڈسٹری بیوشن ٹرانسفارمر کو کامیابی کے ساتھ فراہم کیا۔ یہ یونٹ شمسی اور ونڈ پاور جنریشن سسٹم کے لئے خاص طور پر انجنیئر ہے ، جو قابل اعتماد میڈیم {5 {4 {4 {سے {{4 {} to سے {5 {4 {4} to تک فراہم کرتا ہے۔ افادیت - پیمانے پر قابل تجدید منصوبے۔
یہ تیل {{0} three بھرے ہوئے تین فیز پیڈ - ماونٹڈ ٹرانسفارمر 13.8 کے وی کی بنیادی وولٹیج اور 0.63 کے وی × 2 کے دوہری ثانوی وولٹیج کے ساتھ ڈیزائن کیا گیا ہے ، جو YND1D1 ویکٹر گروپ میں تشکیل دیا گیا ہے۔ 60 ہرٹج پر کام کرتے ہوئے ، اس میں 5.75 ٪ کی رکاوٹ اور 6 کا X/R تناسب ہے ، جو قابل تجدید توانائی اور افادیت کی ایپلی کیشنز میں مستحکم کارکردگی کو یقینی بناتا ہے۔ ٹرانسفارمر میں وولٹیج ریگولیشن کے لئے ± 2 × 2.5 ٪ ٹیپنگ رینج کے ساتھ NO - لوڈ ٹیپ چینجر (NLTC) شامل ہے۔ اعلی - چالکتا ایلومینیم ونڈنگ کے ساتھ بنایا گیا ہے اور نان (قدرتی ہوا کولنگ) کے ذریعہ ٹھنڈا کیا گیا ہے ، یہ ڈی او ای 2016 کی کارکردگی کے معیارات پر عمل پیرا ہے ، جس میں قابل اعتماد اور توانائی - موثر کارکردگی کی پیش کش کی جاتی ہے۔
یہ تین مرحلے کا پیڈ - ماونٹڈ ٹرانسفارمر قابل تجدید توانائی کے انضمام میں ایک اہم کردار ادا کرتا ہے ، جس میں شمسی فارموں یا ونڈ ٹربائنوں کے ذریعہ پیدا ہونے والی درمیانے درجے کی وولٹیج (13.8 کے وی) کو تبدیل کرتے ہوئے انورٹرز یا توانائی کے ذخیرہ کرنے والے نظام سے براہ راست رابطے کے لئے 0.63 کے وی میں کمی واقع ہوتی ہے۔
1. ایف آر 3 سیال بہتر تھرمل کارکردگی ، فائر سیفٹی (فلیش پوائنٹ> 300 ڈگری) ، اور ماحولیاتی فوائد - کلین انرجی زون اور ہائی فائر - خطرے والے علاقوں کے لئے مثالی فراہم کرتا ہے۔
2. مردہ - فرنٹ کنسٹرکشن امریکی حفاظتی کوڈوں کے ساتھ تعمیل کرتا ہے ، جس سے یہ عوام میں تنصیب کے لئے موزوں ہوتا ہے - رسائی ماحول اور توانائی کے پارکس۔
3. لوپ فیڈ ڈیزائن تقسیم شدہ انرجی ریسورس (ڈی ای آر) انضمام کے لئے نظام کی لچک اور وشوسنییتا کو یقینی بناتا ہے۔
یہ ٹرانسفارمر امریکی توانائی کی منتقلی مارکیٹ کے لئے تیار کیا گیا تھا ، جس نے کاربن کے اخراج کو کم کرنے اور قابل تجدید طاقت کے استعمال کو بڑھانے کے لئے قوم کے اہداف کی حمایت کی تھی۔ اپریل 2025 میں شیڈول کے مطابق ، یہ توانائی کی جدت ، ماحولیاتی ذمہ داری ، اور انجینئرنگ کی فضیلت کے لئے ہماری وابستگی کی عکاسی کرتا ہے۔
1.2 تکنیکی تفصیلات
2500 KVA تھری فیز پیڈ - ماونٹڈ ٹرانسفارمر تفصیلات اور ڈیٹا شیٹ
|
فراہم کیا
امریکہ
|
|
سال
2025
|
|
قسم
تین فیز پیڈ ماؤنٹ ٹرانسفارمر
|
|
معیار
IEEE STD C57.12.34-2022
|
|
درجہ بندی کی طاقت
2500 کے وی اے
|
|
تعدد
60 ہرٹج
|
|
فیڈ
لوپ
|
|
سامنے
مردہ
|
|
مرحلہ
تین
|
|
کولنگ کی قسم
نان
|
|
مائع انسولینٹ
FR3 تیل
|
|
پرائمری وولٹیج
13.8 کے وی
|
|
ثانوی وولٹیج
0.63*2 کے وی
|
|
ویکٹر گروپ
ynd1d1
|
|
سمیٹنے والا مواد
ایلومینیم
|
|
رکاوٹ
5.75%
|
|
کارکردگی اور نقصانات کا معیار
doe 2016
|
|
چینجر کو تھپتھپائیں
nltc
|
|
ٹیپنگ رینج
±2*2.5%
|
|
بوجھ کا کوئی نقصان نہیں
2.4 کلو واٹ
|
|
بوجھ کے نقصان پر
15.79 کلو واٹ
|
1.3 ڈرائنگ
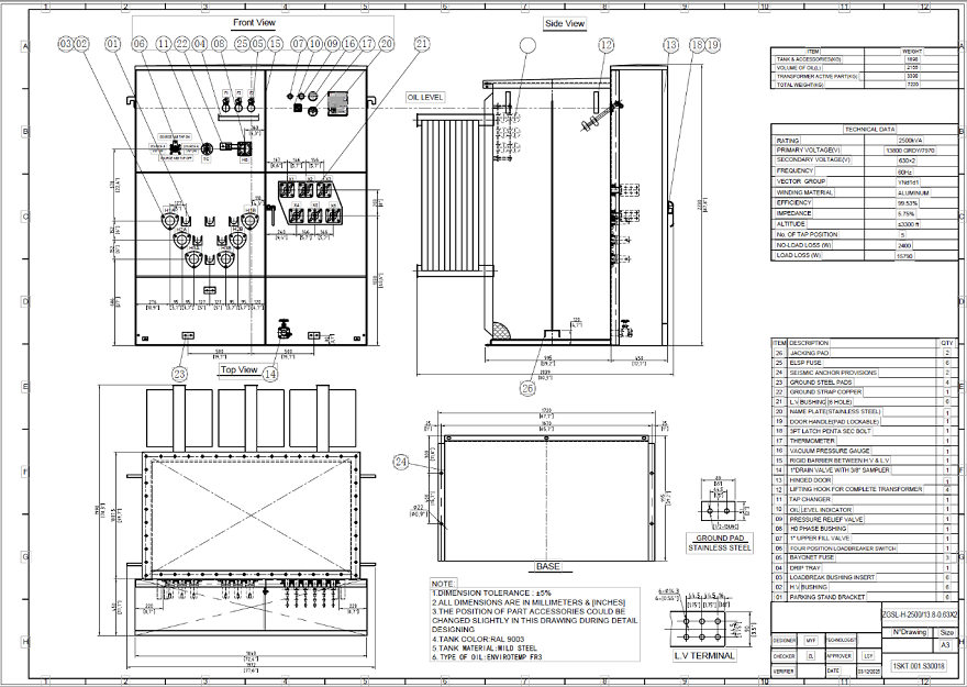
2500 KVA تھری فیز پیڈ - ماونٹڈ ٹرانسفارمر طول و عرض اور وزن کی تفصیلات
![]() |
![]() |
02 مینوفیکچرنگ
2.1 کور
2500 کے وی اے پیڈ ماونٹڈ ٹرانسفارمر تین - فیز تھری - کالم کور ڈیزائن سے بہت فائدہ اٹھاتا ہے ، جو کارکردگی اور کارکردگی کو بڑھاتا ہے۔ یہ بنیادی ڈھانچہ ٹرانسفارمر کو تینوں مراحل میں مقناطیسی راستے بانٹنے کی اجازت دیتا ہے ، جس کے نتیجے میں بہتر بہاؤ میں توازن اور بنیادی نقصانات کم ہوجاتے ہیں۔ یہ جگہ کے استعمال کو بہتر بنانے اور مادی اخراجات کو کم کرنے میں ، زیادہ کمپیکٹ اور ہلکا پھلکا تعمیر میں بھی حصہ ڈالتا ہے۔

2.2 سمیٹ

ٹرانسفارمر تار - زخم اونچا - یہاں تک کہ وولٹیج کی تقسیم اور مضبوط موصلیت کے لئے وولٹیج کنڈلی ونڈنگ کا استعمال کرتا ہے۔ ورق - ٹائپ کم - وولٹیج سمیٹنے سے موثر انداز میں کم نقصانات کے ساتھ اعلی دھاروں کو ہینڈل کیا جاتا ہے۔ یہ YND1D1 ویکٹر گروپ سسٹم کی تنہائی اور بجلی کے معیار کو بڑھاتا ہے۔ یہ ڈیزائن شمسی اور ونڈ انرجی ایپلی کیشنز میں قابل اعتماد کارکردگی کو یقینی بناتا ہے۔
2.3 ٹینک
ٹرانسفارمر میں سنکنرن مزاحمت کے لئے پائیدار سفید پاؤڈر کوٹنگ (RAL 9003) کے ساتھ مہر بند اسٹیل آئل ٹینک شامل ہے۔ بولٹڈ کور تیل کے تحفظ کو یقینی بناتا ہے۔ تین عقبی - ماونٹڈ پلیٹ ریڈی ایٹرز سطح کے رقبے میں اضافہ اور قدرتی ہوا کی نقل و حمل کو فروغ دینے کے ذریعہ گرمی کی کھپت میں اضافہ کرتے ہیں ، مختلف بوجھ کے تحت مستحکم کارکردگی کو یقینی بناتے ہیں۔

2.4 آخری اسمبلی

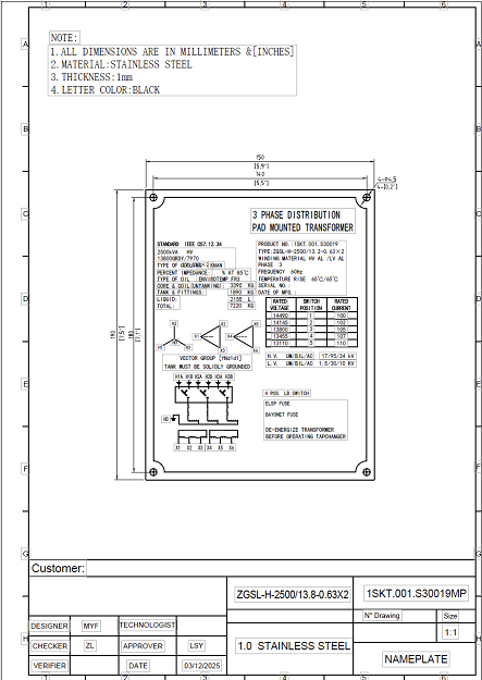
حتمی اسمبلی کے دوران ، یہ 2500 کے وی اے ، 13.8/0.63 × 2 کے وی پیڈ ماونٹڈ ٹرانسفارمر صاف اور پائیدار توانائی کی ایپلی کیشنز کے لئے ڈیزائن کیا گیا ہے ، اس میں چھ 15 کلو واٹ/200 ایک علیحدہ اعلی- وولٹیج بشنگ سے لیس ہے ، جس میں ایک سرشار علیحدہ H0 غیر جانبدار جھاڑی بھی شامل ہے۔ کم -} وولٹیج سائیڈ میں چھ رال - کاسٹ اسپیڈ - محفوظ کیبل کنکشن کے لئے 6 سوراخ والے ٹرمینلز کے ساتھ بوشنگ ٹائپ کریں۔
تحفظ کے اجزاء میں قابل اعتماد غلطی کو یقینی بنانے کے ل three تین موجودہ - محدود فیوز (سی ایل ایف) شامل ہیں۔
کولنگ کو پلیٹ ریڈی ایٹرز کے تین سیٹوں سے بڑھایا جاتا ہے ، جو قابل تجدید توانائی کے ماحول کا مطالبہ کرنے میں زیادہ سے زیادہ کارکردگی کو برقرار رکھنے کے لئے گرمی کی موثر کھپت فراہم کرتا ہے۔
یہ ترتیب حفاظت ، وشوسنییتا ، اور طویل - ٹرم آپریشن کے لئے امریکی کلین انرجی مارکیٹ کی ضروریات کی تائید کرتی ہے۔
03 ٹیسٹنگ

روٹین ٹیسٹ اور ٹیسٹنگ کا معیار
1. مزاحمتی پیمائش: آئی ای ای ای سی 57.12.90-2021 شق 5 کے مطابق
2. تناسب ٹیسٹ: آئی ای ای ای سی 57.12.90-2021 شق 7 کے مطابق
3. فیز - رشتہ ٹیسٹ: آئی ای ای ای سی 57.12.90-2021 شق 6 کے مطابق
4. کوئی بوجھ کا نقصان اور کوئی بوجھ موجودہ نہیں: آئی ای ای کے مطابق C57.12.90-2021 شق 8
5. بوجھ کے نقصانات ، مائبادا وولٹیج اور کارکردگی: آئی ای ای ای سی 57.12.90-2021 شق 9 کے مطابق
6. لاگو وولٹیج ٹیسٹ: آئی ای ای ای سی 57.12.90-2021 شق 10.6 کے مطابق
7. حوصلہ افزائی وولٹیج کا مقابلہ کرنے کا امتحان: آئی ای ای ای سی 57.12.90-2021 شق 10.5.1 کے مطابق
8. موصلیت کے خلاف مزاحمت کی پیمائش
9. مائع ڈوبے ہوئے ٹرانسفارمروں کے لئے دباؤ کے ساتھ لیک ٹیسٹنگ: 20KPA میں لیک ہونے والا ٹیسٹ بغیر کسی رساو کے 12h کے لئے کیا جائے گا۔ کوئی مستقل خرابی نہیں۔
ٹیسٹ کے نتائج
|
کارڈ |
ٹیسٹ آئٹم |
یونٹ |
قبولیت کی اقدار |
ماپا اقدار |
نتیجہ |
|
1 |
مزاحمت کی پیمائش |
% |
زیادہ سے زیادہ مزاحمت عدم توازن کی شرح |
3.10 |
پاس |
|
2 |
تناسب ٹیسٹ |
% |
پرنسپل ٹیپنگ پر وولٹیج تناسب کا انحراف: 0.5 ٪ سے کم یا اس کے برابر کنکشن کی علامت: YND1D1 |
0.01% ~ 0.23% |
پاس |
|
3 |
فیز - تعلقات کے ٹیسٹ |
/ |
ynd1d1 |
ynd1d1 |
پاس |
|
4 |
نہیں - لوڈ نقصانات اور جوش و خروش موجودہ
|
/ |
I0 :: ماپنے والی قیمت فراہم کریں |
0.37% |
پاس |
|
P0: پیمائش کی قیمت فراہم کریں (T: 20 ڈگری) |
2.038kW |
||||
|
بغیر کسی بوجھ کے نقصان کے لئے رواداری +10 ٪ ہے |
/ |
||||
|
5 |
بوجھ کے نقصانات مائبادا وولٹیج اور کارکردگی |
/ |
ٹی: 85 ڈگری رکاوٹ کے لئے رواداری ± 7.5 ٪ ہے کل بوجھ کے نقصان کے لئے رواداری +6 ٪ ہے |
/ |
پاس |
|
زیڈ ٪: پیمائش کی قیمت |
5.85% |
||||
|
پی کے: ناپے ہوئے قیمت |
16.516KW |
||||
|
پی ٹی: ماپا قیمت |
18.554 کلو واٹ |
||||
|
کارکردگی 99.53 ٪ سے کم نہیں |
99.54% |
||||
|
6 |
لاگو وولٹیج ٹیسٹ |
کے وی |
HV/: 34KV 60s LV/: 10KV 60s |
ٹیسٹ وولٹیج کا کوئی خاتمہ نہیں ہوتا ہے |
پاس |
|
7 |
حوصلہ افزائی وولٹیج برداشت کرنا |
کے وی |
اپلائیڈ وولٹیج (کے وی): 2ur |
ٹیسٹ وولٹیج کا کوئی خاتمہ نہیں ہوتا ہے |
پاس |
|
دورانیہ (زبانیں): 48 |
|||||
|
تعدد (ہرٹج): 150 |
|||||
|
8 |
رساو ٹیسٹ |
کے پی اے |
لاگو دباؤ: 20KPA |
کوئی رساو اور نہیں نقصان |
پاس |
|
دورانیہ: 12 ایچ |
|||||
|
9 |
موصلیت کے خلاف مزاحمت کی پیمائش |
GΩ |
HV - lv سے زمین: |
3.11 |
/ |
|
LV - HV سے زمین: |
3.18 |
||||
|
HV & LV سے زمین |
2.99 |
04 پیکنگ اور شپنگ


05 سائٹ اور خلاصہ
یہ 2500 کے وی اے ، 13.8/0.63 × 2 کے وی پیڈ - ماونٹڈ ٹرانسفارمر مہارت کے ساتھ امریکی مارکیٹ میں صاف اور پائیدار توانائی کے منصوبوں کے بڑھتے ہوئے مطالبات کو پورا کرنے کے لئے تیار کیا گیا ہے ، خاص طور پر شمسی اور ہوا کی بجلی کے انضمام کے لئے۔ YND1D1 ویکٹر گروپ ، اعلی - کارکردگی ایلومینیم ونڈنگ ، اور پلیٹ ریڈی ایٹرز کے ذریعہ اعلی درجے کی ٹھنڈک جیسی خصوصیات کے ساتھ ، یہ قابل تجدید توانائی کے نظام میں قابل اعتماد وولٹیج کی تبدیلی اور مستحکم آپریشن کو یقینی بناتا ہے۔
حفاظت کے ساتھ لیس - مرکوز مردہ - سامنے کی تعمیر اور مضبوط تحفظ کے اجزاء ، یہ ٹرانسفارمر سخت امریکی معیارات کی تعمیل کرتا ہے ، جس سے یہ عوامی اور افادیت - پیمانے کی تنصیبات کے لئے مثالی ہے۔ اس کا ماحول دوست FR3 سیال اور توانائی کا استعمال - موثر ڈیزائن سجاوٹ اور صاف طاقت کی طرف ملک بھر میں تبدیلی کے ساتھ بالکل سیدھ میں ہے۔
قابل تجدید توانائی کے لئے تیار کردہ - کنارے کاٹنے سے ، قابل اعتماد ٹرانسفارمر ، ہماری کمپنی پائیدار بجلی پیدا کرنے میں منتقلی کی حمایت کرتی ہے ، اور گرڈ استحکام اور آپریشنل کارکردگی کو یقینی بناتے ہوئے صارفین کو اپنے صاف توانائی کے اہداف کو پورا کرنے میں مدد فراہم کرتی ہے۔

ڈاؤن لوڈ، اتارنا ٹیگ: بگ گرین ٹرانسفارمر ، کارخانہ دار ، سپلائر ، قیمت ، لاگت
You Might Also Like
500 KVA مردہ فرنٹ پیڈ ماونٹڈ ٹرانسفارمر -24.94/0.48 ...
112.5 KVA پیڈ ماونٹڈ ٹرانسفارمر -34.5/0.208 KV|USA 2024
1000 کے وی اے آئل سے بھرے پیڈ ماونٹڈ ٹرانسفارمر 13.8...
1500 KVA پیڈ ماونٹڈ ٹرانسفارمر قیمت -23.9/0.416 KV|ج...
750 KVA پیڈ ماؤنٹ ٹرانسفارمر -25/0.6 کے وی|کینیڈا 2025
1000 kVA پیڈ ماؤنٹ ٹرانسفارمر-13.8/0.46 kV|گیانا 2025
انکوائری بھیجنے












