3000 کے وی اے پیڈ ماونٹڈ ٹرانسفارمر 25/0.6 کے وی|کینیڈا 2025
صلاحیت: 3000 کے وی اے
وولٹیج: 25 گرڈی/14.434-0.6y/0.347KV
خصوصیت: تیل کے اوپر تھرمامیٹر کے ساتھ

سمارٹ پاور جہاں آپ کو اس کی ضرورت ہے - جدید گرڈ کے لئے پیڈ - ماونٹڈ ٹرانسفارمر۔
01 جنرل
1.1 منصوبے کی تفصیل
3000 کے وی اے تھری فیز پیڈ ماونٹڈ ٹرانسفارمر 2025 میں کینیڈا بھیج دیا گیا تھا۔ ٹرانسفارمر کی درجہ بندی کی طاقت اوون کولنگ کے ساتھ 3000 کے وی اے ہے۔ پرائمری وولٹیج 25 گرڈی/14.434 KV ہے جس میں ± 2*2.5 ٪ ٹیپنگ رینج (NLTC) ہے ، ثانوی وولٹیج 0.6y/0.347 KV ہے ، انہوں نے YNYN0 کا ویکٹر گروپ تشکیل دیا۔
ہمارے CSA - مصدقہ پیڈ - ماونٹڈ ٹرانسفارمر شہری ، تجارتی اور صنعتی ایپلی کیشنز میں محفوظ ، قابل اعتماد اور موثر بجلی کی تقسیم کے لئے انجنیئر ہیں۔ CSA C227.4: 21 معیارات کو پورا کرنے کے لئے ڈیزائن کیا گیا ہے ، یہ مضبوط یونٹ کینیڈا کے بجلی کی حفاظت کی ضروریات کے ساتھ مکمل تعمیل کو یقینی بناتے ہیں ، جس سے سخت موسمی حالات اور اعلی - لوڈ ماحول میں اعلی کارکردگی کی فراہمی ہوتی ہے۔
کمپیکٹ ، چھیڑ چھاڑ - مزاحم دیواروں ، جدید ٹھنڈک کے نظام ، اور سنکنرن - مزاحم مواد کی خاصیت ، ہمارے ٹرانسفارمر کم سے کم دیکھ بھال کے ساتھ طویل - اصطلاح استحکام فراہم کرتے ہیں۔ چاہے زیرزمین - سے - اوور ہیڈ تبادلوں ، قابل تجدید توانائی کے انضمام ، یا افادیت گرڈ اپ گریڈ ، ہمارے CSA - منظور شدہ پیڈ - نصب ٹرانسفارمر سختی کی جانچ اور کوالٹی یقین دہانی کے ذریعہ قابل اعتماد بجلی کی تقسیم کے حل کی پیش کش کرتے ہیں۔
1.2 کلیدی ڈیزائن کی جھلکیاں
![]() |
ساخت میں رنگ مین پلگ - اعلی اور کم وولٹیج کنکشن فرنٹ ڈیڈ - اختتامی ڈیزائن بل اور بشنگ کا انتظام |
1.3 تکنیکی تفصیلات
3000 کے وی اے پیڈ ماونٹڈ ٹرانسفارمر نردجیکرن کی قسم اور ڈیٹا شیٹ
|
فراہم کیا
کینیڈا
|
|
سال
2025
|
|
قسم
پیڈ ماونٹڈ ٹرانسفارمر
|
|
معیار
CSA C227.4: 21
|
|
درجہ بندی کی طاقت
3000 کے وی اے
|
|
تعدد
60Hz
|
|
مرحلہ
3
|
|
فیڈ
لوپ
|
|
سامنے
مردہ
|
|
کولنگ کی قسم
اونن
|
|
پرائمری وولٹیج
25 گرڈی/14.434 کے وی
|
|
ثانوی وولٹیج
0.6y/0.347 kv
|
|
سمیٹنے والا مواد
ایلومینیم
|
|
کونیی نقل مکانی
ynyn0
|
|
رکاوٹ
5.75%
|
|
چینجر کو تھپتھپائیں
nltc
|
|
ٹیپنگ رینج
±2*2.5%
|
|
بوجھ کا کوئی نقصان نہیں
3.46 کلو واٹ
|
|
بوجھ کے نقصان پر
27 کلو واٹ
|
1.4 ڈرائنگ
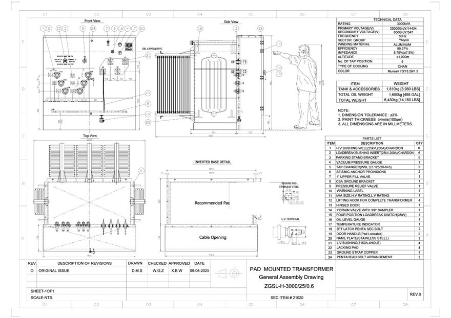
3000 کے وی اے پیڈ ماونٹڈ ٹرانسفارمر ڈایاگرام ڈرائنگ اور سائز۔
![]() |
![]() |
02 مینوفیکچرنگ
![]() |
آئرن کور: ایک پیڈ - ماونٹڈ ٹرانسفارمر کے آئرن کور میں عام طور پر تین - فیز فائیو فائیو - لمب اسٹیکڈ کور کی خصوصیات ہوتی ہے ، جو اونچائی -} پارگمیتا سلیکن اسٹیل لیمینیشن سے تیار کی گئی ہے۔ اس ڈیزائن میں تین اہم اعضاء (تین - فیز کنڈلی کو سمیٹنے کے لئے) اور دو معاون سائیڈ اعضاء شامل ہیں ، جس میں بند مقناطیسی سرکٹ تشکیل دیا گیا ہے تاکہ کوئی - بوجھ میں کمی اور بہاؤ کی رساو کو کم سے کم کیا جاسکے۔ ٹکڑے ٹکڑے شدہ پرتیں ایڈی موجودہ نقصانات کو کم کرتی ہیں ، جبکہ پانچ - اعضاء کی ترتیب مقناطیسی توازن کو بڑھا دیتی ہے ، جس سے یہ بوجھ - اعلی کارکردگی اور کم شور کے عمل کے ساتھ مختلف ایپلی کیشنز کے لئے مثالی بن جاتا ہے۔ |
![]() |
سمیٹنے: ایک پیڈ - ماونٹڈ ٹرانسفارمر کی سمیٹنے میں کم - وولٹیج ورق سمیٹنے اور اونچائی - وولٹیج وائر سمیٹ کا مشترکہ ڈیزائن شامل ہے۔ اعلی -} وولٹیج سائیڈ پر بنیادی کنڈلی ڈائی الیکٹرک طاقت اور کولنگ کی کارکردگی کو بڑھانے کے لئے موصل تانبے کے تار کے ساتھ زخم ہے۔ کم - وولٹیج سائیڈ انٹرلیئر موصلیت کے ساتھ ایلومینیم یا تانبے کی ورق کی سمت میں ملازمت کرتا ہے ، کمپیکٹ تعمیر کی پیش کش کرتا ہے ، نقصانات میں کمی اور اعلی میکانکی استحکام۔ یہ ہائبرڈ سمیٹنے کی ترتیب بیرونی ایپلی کیشنز کا مطالبہ کرنے کے لئے ٹرانسفارمر کی کارکردگی اور وشوسنییتا کو بہتر بناتی ہے۔ |
![]() |
ٹینک: ایک پیڈ - ماونٹڈ ٹرانسفارمر کا ٹینک عام طور پر بنڈل آئل ٹینکوں کو ملازمت دیتا ہے ، جو لیک اور ماحولیاتی آلودگی کو روکنے کے لئے اندرونی تیل کے چیمبر اور بیرونی کنٹینمنٹ شیل کے ساتھ مزاحم اسٹیل سے بنا ہوا ہے۔ کمپیکٹ ٹینک میں گرمی کی کھپت کو بہتر بنانے کے لئے دباؤ کے خلاف مزاحمت اور مربوط کولنگ پنوں کے لئے تقویت یافتہ پسلیاں شامل ہیں۔ یہ ڈیزائن ماحولیاتی ضوابط کی تعمیل کرتا ہے جبکہ بیرونی آپریشن میں طویل - اصطلاح میں سگ ماہی کی وشوسنییتا اور حفاظت کو یقینی بناتا ہے۔ |
![]() |
گراؤنڈ پٹا تانبا: ایک کم - مائبادا راستہ - فراہم کرتا ہے لہذا کوئی غیر متوقع رساو ، غلطی موجودہ ، یہ سیدھے زمین میں جاتا ہے ، لوگوں اور سامان کو محفوظ رکھتا ہے۔ بجلی کی مداخلت ، اوور وولٹیجز میں بھی مدد کرتا ہے جو گراؤنڈنگ کے وقت پاپ اپ ہوجاتے ہیں۔ تانبے ، مضبوط اور سنکنرن مزاحم ، بہت اچھے کنڈکٹر ؛ وقت کے ساتھ طویل ، قابل اعتماد ، آپریشن میں بھروسہ کرنے میں آسان رہتا ہے۔ CSA گراؤنڈ بریکٹ: زمینی تاروں یا پٹے کو جوڑنے کے لئے معیاری بڑھتے ہوئے نقطہ ؛ یقینی بناتا ہے کہ گراؤنڈنگ سی ایس اے کے حفاظتی معیارات ، سرٹیفیکیشن کی ضروریات کو پورا کرتی ہے۔ بریکٹ ڈیزائن - مضبوط ، مکینیکل تناؤ ، کمپن ، ہوا ، سنکنرن کا مقابلہ کرتا ہے۔ ایک پائیدار ، قابل اعتماد گراؤنڈنگ حل فراہم کرتا ہے ، جو انسٹال اور معائنہ کرنے میں آسان ہے۔ |
03 ٹیسٹنگ
|
کارڈ |
ٹیسٹ آئٹم |
|
| 1 |
مزاحمت کی پیمائش |
![]() |
| 2 |
تناسب ٹیسٹ |
![]() |
| 3 |
فیز - رشتہ کے ٹیسٹ |
![]() |
| 4 | نہیں - لوڈ نقصانات اور جوش و خروش موجودہ | ![]() |
| 5 | بوجھ کے نقصانات مائبادا وولٹیج اور کارکردگی | ![]() |
| 6 | لاگو وولٹیج ٹیسٹ | ![]() |
| 7 | حوصلہ افزائی وولٹیج ٹیسٹ کا مقابلہ کریں | ![]() |
| 8 | رساو ٹیسٹ | ![]() |
| 9 | موصلیت کے خلاف مزاحمت کی پیمائش |
|
| 10 | تیل ٹیسٹ |


04 پیکنگ اور شپنگ
4.1 پیکنگ
1. 3 فیز ٹرانسفارمر کو ٹرے پر رکھیں ، اسے ٹن ورق بیگ سے ڈھانپیں ، ابتدائی طور پر بیگ کو افتتاحی بائیں سے مہر لگائیں ، اوپننگ کے ذریعے خالی ہوجائیں ، اور پھر افتتاحی مہر لگائیں۔ زنگ آلودگی کو روکنے کے لئے ڈیسکینٹ کو اندر رکھیں۔
2. ٹرانسفارمر کے آس پاس کونے کے محافظ (جھاگ/پلاسٹک/گتے) شامل کریں اور اسے حفاظتی فلم سے لپیٹیں۔
3. اسے لکڑی کے خانے میں پیک کریں اور باکس پر کشش ثقل کے نشانوں کا مرکز اور سپرے کریں۔

4.2 شپنگ

پیڈ - ماونٹڈ ٹرانسفارمر لکڑی کے کریٹ میں پیک کیا جاتا ہے اور فورک لفٹ کا استعمال کرتے ہوئے ٹرک پر لادا جاتا ہے ، پھر اسے کنٹینر پورٹ تک پہنچایا جاتا ہے۔ یہ سی آئی ایف (لاگت ، انشورنس ، اور مال بردار) کی شرائط کے تحت سمندری فریٹ کے ذریعہ مونٹریال ، کینیڈا کے مونٹریال کی منزل بندرگاہ تک بھیج دیا جاتا ہے۔ یہ سارا عمل نمی کو یقینی بناتا ہے - پروفنگ ، جھٹکا مزاحمت ، اور بین الاقوامی شپنگ کے معیارات کی تعمیل میں محفوظ مضبوطی کو یقینی بناتا ہے۔
05 کارکردگی کے فوائد
اعلی کارکردگی اور کم نقصانات
استعداد 99.37 ٪ سے ٹکرا جاتی ہے ، جبکہ کوئی - لوڈ اور بوجھ کے نقصانات کم رہتے ہیں - توانائی کی بچت کرتے ہیں ، چلانے کے اخراجات کو کم کرتے ہیں۔
پائیدار ایلومینیم ونڈنگ
ایلومینیم ونڈنگ ، معیاری اور لمبی - دیرپا ؛ روشنی ، مضبوط ، کم سے کم دیکھ بھال۔ بھاری - ڈیوٹی آپریشن کے لئے ڈیزائن کیا گیا ہے ، اس کے باوجود روزانہ استعمال میں پیش گوئی کی جاسکتی ہے۔
اوورلوڈ صلاحیت اور قابل اعتماد
اوورلوڈز کو اچھی طرح سے ہینڈل کرتا ہے۔ یہاں تک کہ اچانک زیادہ بوجھ کے تحت ، یہ مستحکم رہتا ہے۔ اعلی وشوسنییتا ، ٹائم ٹائم کو کم سے کم کرتا ہے۔
تین - فیز سسٹم میں متوازن آپریشن
تینوں مراحل کو متوازن رکھتا ہے۔ ہموار آپریشن ، غلطیوں کا کم خطرہ۔ مجموعی طور پر ، توانائی - موثر ، محفوظ ، اور کام کرنے میں آسان - آپریٹرز دن کے بعد اس پر انحصار کرسکتے ہیں۔

ڈاؤن لوڈ، اتارنا ٹیگ: 3000 کے وی اے پیڈ ماونٹڈ ٹرانسفارمر ، مینوفیکچرر ، سپلائر ، قیمت ، لاگت
You Might Also Like
انکوائری بھیجنے













