750 KVA آؤٹ ڈور پیڈ ماونٹڈ ٹرانسفارمر -34.5/0.48 KV|USA 2024
صلاحیت: 750 KVA
وولٹیج: 34.5/0.48 کے وی
خصوصیت: ٹاپ آئل تھیمومیٹر کے ساتھ

شاندار کاریگری اور عمدہ معیار - تین - فیز پیڈ - ماونٹڈ ٹرانسفارمر موثر اور مستحکم پاور سسٹم کی حمایت کرتا ہے!
01 جنرل
1.1 پروجیکٹ کا پس منظر
750 کے وی اے تھری فیز پیڈ ماونٹڈ ٹرانسفارمر 2024 میں چین کو پہنچایا گیا تھا۔ ٹرانسفارمر کی درجہ بندی کی طاقت 750 کے وی اے ہے جس میں اوون کولنگ ہے۔ پرائمری وولٹیج 34.5gry/19.92 KV ہے جس میں ± 2*2.5 ٪ ٹیپنگ رینج (NLTC) ہے ، ثانوی وولٹیج 0.277/0.48 KV ہے ، انہوں نے YNYN0 کا ایک ویکٹر گروپ تشکیل دیا۔
تین - فیز پیڈ - ماونٹڈ ٹرانسفارمر کا ایک بند ڈیزائن ہے اور زمین پر سوار ہے ، جس سے کیبل کے آسان رابطوں کی اجازت ملتی ہے۔ ٹرانسفارمر کا دیوار واٹر پروف اور ڈسٹ پروف ہے ، جس سے یہ مختلف موسمی حالات کے ل suitable موزوں ہے۔ یہ بوجھ بریک بشنگ کو اپناتا ہے جو ایک خصوصی آلہ ہے جو بوجھ کے موجودہ میں خلل ڈالے بغیر بحالی اور رابطوں کو قابل بناتا ہے۔ اس سے آپریٹرز کو کیبلز کو محفوظ طریقے سے جوڑنے اور منقطع کرنے کی اجازت ملتی ہے جبکہ نظام متحرک رہتا ہے ، اس طرح پاور گرڈ کی وشوسنییتا اور لچک کو بڑھاتا ہے۔ تین - فیز پیڈ - ماونٹڈ ٹرانسفارمر مختلف حفاظتی خصوصیات سے لیس ہیں ، جیسے اوورلوڈ پروٹیکشن ، شارٹ سرکٹ پروٹیکشن ، اور درجہ حرارت کی نگرانی محفوظ آپریشن کو یقینی بنانے کے ل .۔ شہری اور دیہی بجلی کی تقسیم کے نظام میں تین فیز پیڈ ٹرانسفارمر بڑے پیمانے پر استعمال ہوتے ہیں ، جو بجلی کی بڑھتی ہوئی طلب کو پورا کرنے کے لئے قابل اعتماد بجلی کی مدد فراہم کرتے ہیں۔
1.2 تکنیکی تفصیلات
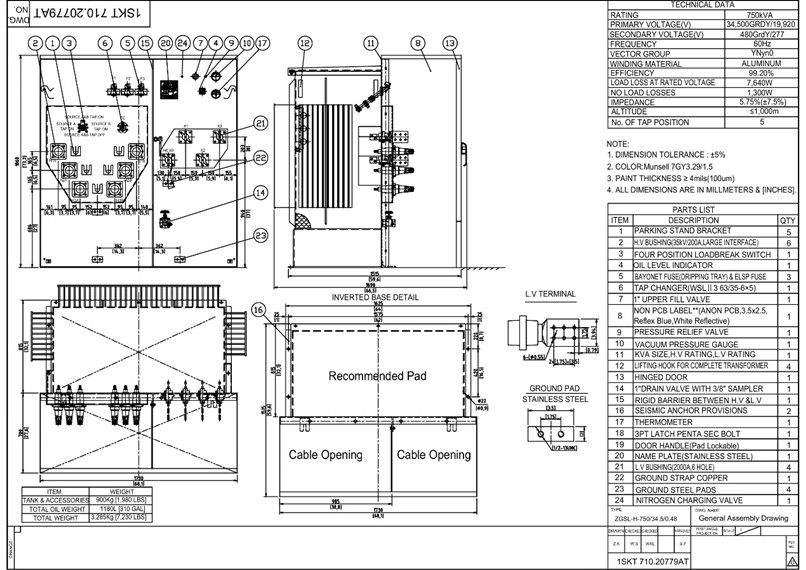
750 KVA ٹرانسفارمر وضاحتیں قسم اور ڈیٹا شیٹ
|
فراہم کیا
چین
|
|
سال
2024
|
|
قسم
پیڈ ماونٹڈ ٹرانسفارمر
|
|
معیار
اے این ایس آئی اسٹینڈرڈ
|
|
درجہ بندی کی طاقت
750 کے وی اے
|
|
تعدد
60 ہرٹج
|
|
مرحلہ
3
|
|
فیڈ
لوپ
|
|
سامنے
مردہ
|
|
کولنگ کی قسم
اونن
|
|
پرائمری وولٹیج
34.5 گرڈی/19.92 کے وی
|
|
ثانوی وولٹیج
0.277/0.48 کے وی
|
|
سمیٹنے والا مواد
ایلومینیم
|
|
کونیی نقل مکانی
ynyn0
|
|
رکاوٹ
5.75%(±7.5%)
|
|
چینجر کو تھپتھپائیں
nltc
|
|
ٹیپنگ رینج
±2*2.5%
|
|
بوجھ کا کوئی نقصان نہیں
1.3kw
|
|
بوجھ کے نقصان پر
7.64kW
|
|
لوازمات
معیاری ترتیب
|
1.3 ڈرائنگ
750 KVA پیڈ ماونٹڈ ٹرانسفارمر ڈایاگرام ڈرائنگ اور سائز۔
![]() |
![]() |
02 مینوفیکچرنگ
2.1 کور
ایک تین - فیز پیڈ - ماونٹڈ ٹرانسفارمر کا بنیادی حصہ ایک کالم - ٹائپ ڈیزائن میں ملازمت کرتا ہے ، جس میں ایک سے زیادہ بنیادی ٹانگوں پر مشتمل ہوتا ہے جس میں ایک ساتھ جمع ہوتا ہے تاکہ ایک بڑے مقناطیسی بہاؤ کا راستہ فراہم کیا جاسکے۔ کور کا ڈیزائن ایک بند لوپ ہے ، جس میں زیادہ سے زیادہ مقناطیسی بہاؤ کنٹینمنٹ اور ان پٹ اور آؤٹ پٹ کے مابین موثر توانائی کے تبادلوں کو یقینی بنانا ہے۔ کور کا ڈیزائن عام طور پر تین - مرحلے کی دھاروں کی متوازن تقسیم کو یقینی بنانے کے لئے ایک سڈول انتظامات کا استعمال کرتا ہے ، جس سے آپریشن کے دوران شور اور کمپن کو کم کیا جاسکتا ہے۔ بنیادی مواد اور ڈیزائن کا انتخاب اچھی تھرمل چالکتا پیش کرتا ہے ، جو آپریشن کے دوران گرمی کو ختم کرنے اور زیادہ سے زیادہ آپریٹنگ درجہ حرارت کو برقرار رکھنے میں مدد کرتا ہے۔

2.2 سمیٹ

سمیٹنے میں تین - مرحلے کی بجلی کی فراہمی (A ، B ، اور C مراحل) کے مطابق ایک جیسی ونڈنگ کے تین سیٹ شامل ہیں۔ یہ ڈیزائن ہر مرحلے کے مابین توازن اور فعالیت کو یقینی بناتا ہے ، جس سے مستحکم تین - فیز پاور آؤٹ پٹ فراہم کرنے میں مدد ملتی ہے۔ ای ونڈنگ عام طور پر ایلومینیم سے کنڈکٹر مواد کی حیثیت سے بنی ہوتی ہے۔ مختصر سرکٹس اور رساو کو روکنے کے لئے سمیٹنگ موصلیت کے مواد سے ڈھکی ہوئی ہے۔ اعلی - معیاری سمیٹنے والے ڈیزائن موجودہ نقصانات اور تھرمل نقصانات کو نمایاں طور پر کم کرسکتے ہیں ، جس سے ٹرانسفارمر کی مجموعی کارکردگی کو بہتر بنایا جاسکتا ہے۔
2.3 ٹینک
ٹینک اس کی استحکام اور طاقت کو بڑھانے کے لئے سنکنرن - مزاحم سٹینلیس سٹیل سے بنا ہے ، اس بات کو یقینی بناتا ہے کہ یہ تیل کے اندرونی دباؤ اور بیرونی ماحول کے اثرات کا مقابلہ کرسکتا ہے۔ آئل ٹینک میں تیل کے رساو کو روکنے کے لئے ایک مہر بند ڈیزائن پیش کیا گیا ہے ، جبکہ نمی یا نجاستوں کے داخل ہونے سے بھی گریز کیا گیا ہے ، اور اس طرح تیل کی استحکام اور صفائی کو برقرار رکھا جاسکتا ہے۔ ٹینک کے اندر ٹرانسفارمر آئل میں عمدہ موصلیت کی خصوصیات ہیں ، جو الیکٹریکل خرابیوں اور رساو کو مؤثر طریقے سے روکتی ہیں ، جو ٹرانسفارمر کے محفوظ آپریشن کو یقینی بناتی ہیں۔ ٹینک تیل کی سطح کے گیجز سے لیس ہے جو تیل کی سطح کی حقیقی - وقت کی نگرانی فراہم کرتا ہے ، اس بات کو یقینی بناتا ہے کہ موثر ٹھنڈک کو برقرار رکھنے کے لئے یہ معمول کی حد میں رہتا ہے۔ آئل ٹینک کے ڈیزائن میں ضرورت سے زیادہ اندرونی دباؤ کو روکنے کے لئے دباؤ سے متعلق امدادی والوز شامل ہیں جو ٹینک کو پہنچنے والے نقصان یا دھماکے کا باعث بن سکتے ہیں۔

2.4 آخری اسمبلی

سمیٹنے کی تنصیب: تیل کے ٹینک کے اندر آزمائشی سمیٹ انسٹال کریں ، اس بات کو یقینی بنائیں کہ وہ مناسب لیڈز سے صحیح طور پر جڑے ہوئے ہیں۔
بنیادی تنصیب: تیل کے ٹینک کے اندر کور کو جمع کریں اور محفوظ کریں تاکہ سمیٹ کے ساتھ مؤثر طریقے سے جوڑے ہوں۔
تیل بھرنا: اس بات کو یقینی بنانے کے بعد کہ تمام داخلی اجزاء مناسب طریقے سے نصب ہیں ، تیل کے ٹینک کو موصل تیل سے بھریں تاکہ یہ یقینی بنایا جاسکے کہ سمیٹ اور کور مکمل طور پر ڈوبے ہوئے ہیں۔
سگ ماہی اور جانچ: تیل کے ٹینک پر مہر لگائیں اور دباؤ اور رساو کے ٹیسٹ کروائیں تاکہ یہ یقینی بنایا جاسکے کہ تیل کی رساو نہیں ہے۔
بجلی کی وائرنگ: برقی اسکیمیٹک کے مطابق برقی وائرنگ انجام دیں ، اعلی - وولٹیج اور کم - وولٹیج اطراف کے لئے ٹرمینلز کو جوڑتے ہوئے۔
03 ٹیسٹنگ
(1) معمول کی جانچ
a) رابطوں اور نل کی پوزیشنوں پر تناسب
ب) کونیی نقل مکانی
c) NO - 100 rated ریٹیڈ وولٹیج پر لوڈ نقصانات
د) 100 ٪ ریٹیڈ وولٹیج پر دلچسپ موجودہ
e) ریٹیڈ کرنٹ پر لولوڈ نقصانات اور رکاوٹ
f) لاگو وولٹیج
جی) حوصلہ افزائی وولٹیج
h) ٹرانسفارمر ٹینک لیک - پتہ لگانے کا ٹیسٹ
i) تسلسل کا امتحان
(2) ٹائپ ٹیسٹ
a) مزاحمت
b) درجہ حرارت میں اضافہ
ج) تسلسل کی طاقت
د) ریڈیو - اثر وولٹیج
f) ٹرانسفارمر سالمیت
جی) کور آڈیبل آواز
h) منفی دباؤ برداشت کرنا


04 سائٹ اور خلاصہ
خلاصہ یہ کہ ، ہمارے تین - فیز پیڈ - ماونٹڈ ٹرانسفارمر آپ کی بجلی کی تقسیم کی ضروریات کے لئے غیر معمولی کارکردگی ، وشوسنییتا اور حفاظت کی فراہمی کے لئے انجنیئر ہے۔ اس کی مضبوط تعمیر ، جدید موصلیت کی خصوصیات ، اور موثر کولنگ سسٹم کے ساتھ ، یہ ٹرانسفارمر مختلف ماحولیاتی حالات میں موثر انداز میں چلانے کے لئے ڈیزائن کیا گیا ہے۔ چاہے آپ شہری انفراسٹرکچر ، تجارتی سہولیات ، یا صنعتی ایپلی کیشنز کو بڑھانے کے خواہاں ہیں ، ہمارا ٹرانسفارمر ایک کمپیکٹ اور ورسٹائل حل پیش کرتا ہے جو اعلی صنعت کے معیار کو پورا کرتا ہے۔ معیار اور جدت طرازی کے لئے ہمارے عزم پر بھروسہ کریں ، اور اپنے آپریشنوں کے لئے مستحکم اور موثر بجلی کی فراہمی کو یقینی بنانے کے لئے ہمارے تین - فیز پیڈ - ماونٹڈ ٹرانسفارمر کا انتخاب کریں۔

ڈاؤن لوڈ، اتارنا ٹیگ: آؤٹ ڈور پیڈ ماونٹڈ ٹرانسفارمر ، کارخانہ دار ، سپلائر ، قیمت ، لاگت
You Might Also Like
2500 کے وی اے پیڈ ماونٹڈ ٹرانسفارمر -24.94/0.6 KV|کی...
ٹرانسفارمر 1000KVA-25/0.6 KV|کینیڈا 2024
3000 KVA ٹرانسفارمر -25/0.6 کے وی|کینیڈا 2025
2000 kVA پیڈ ماونٹڈ ٹرانسفارمر-24/0.48 kV|امریکہ 2024
1000 kVA پیڈ ماؤنٹ ٹرانسفارمر-13.8/0.46 kV|گیانا 2025
1500 KVA پیڈ ماؤنٹ ٹرانسفارمر -13.8/0.46 KV|گیانا 2025
انکوائری بھیجنے









